Zurück zur Übersicht

Investieren, wo Mainz wächst - Voll vermietetes MFH mit 3 Einheiten


189 m²
Wohnfläche
9
Zimmer
0-4676
Objekt-Nr.
PLZ
55127

Ort
Mainz

Objektart
Zweifamilienhaus

Wohnfläche
189 m²

Grundstück
402 m²

Mieteinnahmen
19.680 € p.a. (Ist)

Rendite
rd. 3,86 %

Etage
1

Anzahl Etagen
2

Wohneinheiten
3

Stellplätze
3

Vermietet
Ja

Verfügbar ab
vermietet

Baujahr
1960

Provision (inkl. MwSt.)
5,95 %

Kaufpreis
510.000 €

Objektbeschreibung

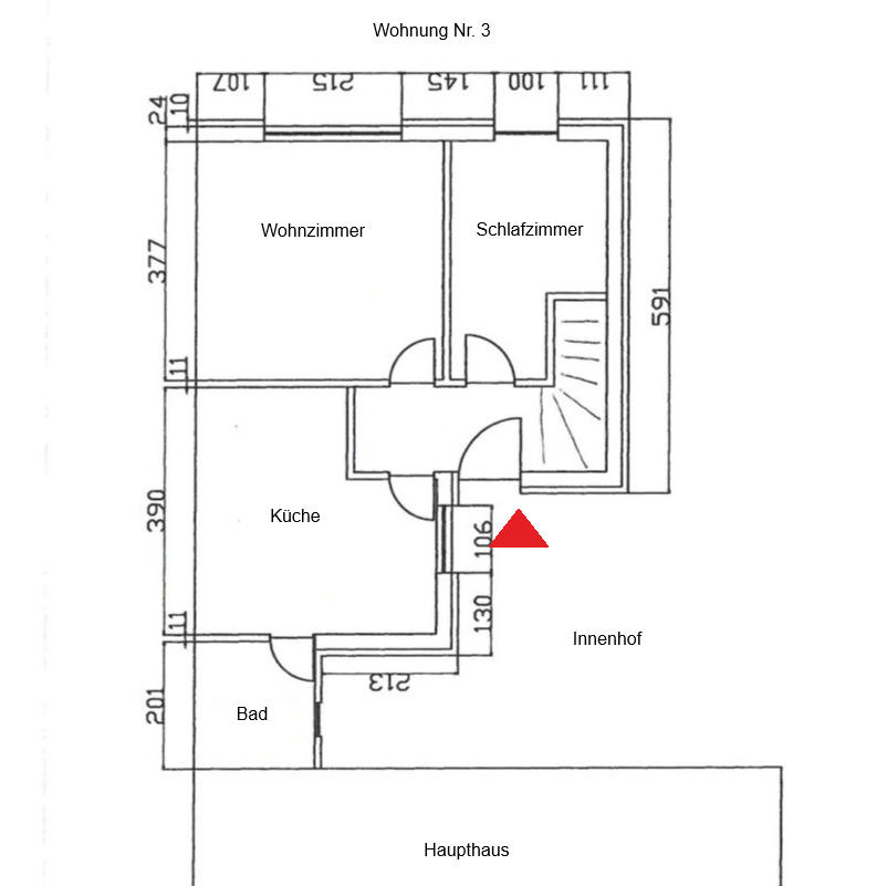
Willkommen zum Angebot dieses charmanten Mehrfamilienhauses in begehrter Ortslage von Marienborn. Das Haus besteht aus drei Einheiten, die eine ideale Kombination aus Wohnkomfort und Anlagemöglichkeiten bieten. Das Mehrfamilienhaus umfasst drei Einheiten verteilt auf Erdgeschoss, 1. Obergeschoss und einen Anbau. Mit einer Grundstücksgröße von rd. 402 m² und einer Gesamtwohnfläche von rd. 189 m² sowie einer Nutzfläche von rd. 119 m² bietet dieses Anwesen ausreichend Platz und Potenzial. Einheiten und Mieteinnahmen pro Jahr: Erdgeschoss: Die Wohnung im Erdgeschoss verfügt über eine Wohnfläche von rd. 52 m² und erzielt eine Nettomiete von 530,46EUR mtl.. Anbau: Der Anbau bietet eine Wohnfläche von rd. 47 m² sowie eine Nutzfläche von rd. 33 m² und generiert eine Nettomiete von 526,50EUR mtl.. 1. Obergeschoss: Diese Maisonette-Wohnung erstreckt sich über zwei Etagen und einen Dachboden mit einer Wohnfläche von rd. 92 m² und einer Nutzfläche von rd. 21 m². Die monatliche Nettomiete beträgt rd. 1.150EUR. Insgesamt belaufen sich die Mieteinnahmen aktuell auf 26.483,52 EUR netto pro Jahr und generieren eine Rendite von rd. 5,19%. Ausstattung und Sanierungen: Jede Wohnung verfügt über einen eigenen Keller. Drei Stellplätze sind auf dem Grundstück vorhanden. Das Haus wurde kontinuierlich saniert und modernisiert: 1998: Einbau von Doppelt-verglasten Kunststofffenster im Haupthaus. 2009: Erneuerung der Steigleitungen im gesamten Haus. 2010: Einbau von Doppelt-verglasten Kunststofffenstern im Anbau. 2010: Fassaden Sanierung am Anbau (Wärmedämmung 100mm) 2012: Installation einer Gas-Zentralheizung für das Haupthaus. 2013: Dach-Dämmung im Innenbereich (Untersparrendämmung). 2014: Installation einer Photovoltaik auf dem Dach des Anbaus zur Stromerzeugung. 2024: Sanierung des Duschbads im Anbau. Dieses Mehrfamilienhaus bietet eine hervorragende Gelegenheit für Investoren oder Käufer, die nach einer attraktiven Wohnimmobilie mit Mieteinnahmen suchen. Für weitere Informationen oder um einen Besichtigungstermin zu vereinbaren, stehen wir Ihnen gerne zur Verfügung.

Lage


Marienborn ist ein Ortsbezirk der Rheinland-pfälzischen Landeshauptstadt Mainz. Mit rund 4500 Einwohnern (Hauptwohnsitz) ist er der nach Drais zweit kleinste Mainzer Stadtteil, zwischen der Bahnlinie Mainz-Alzey und dem Autobahnkreuz Mainz-Süd gelegen. Marienborn wird von den Öffentlichen Verkehrsmitteln von den Straßenbahnlinien 51 und 53 sowie von der Buslinie 70 angefahren, wodurch Sie in wenigen Minuten am Mainzer Hautbahnhof sind. Auch bietet Marienborn durch seine Nähe zu Mainz-Bretzenheim viele Nahversorgungsmöglichkeiten wie z.B. Netto, Aldi, Lidl, Gutenbergcenter, Restaurants und Apotheken.

Kontakt


Volkan Kirstein

Volkan Kirstein

Immobilienkaufmann

Verkauf von Wohn- und Gewerbeimmobilien

Anrede










Alle Angaben sind freiwillig. Wenn wir Ihnen antworten sollen, geben Sie uns bitte entweder Ihre Telefon-Nr. oder Handy-Nr. oder E-Mail-Adresse an.

Kenntnisnahme_Widerrufsbelehrung_Datenschutzerklärung*

Ich habe die Widerrufsbelehrung und die Datenschutzerklärung zur Kenntnis genommen und willige in die Speicherung und Verarbeitung meiner Daten ein.