Zurück zur Übersicht

Raum für Wachstum: Bürogeprägte Gewerbeimmobilie mit Investmentpotenzial


1.050 m²
Grundstück
762 €/m²
Kaufpreis pro m²
1-4826
Objekt-Nr.
PLZ
55743

Ort
Idar-Oberstein

Objektart
Gewerbegrundstück

Grundstück
1.050 m²

Kaufpreis
800.000 €

Objektbeschreibung

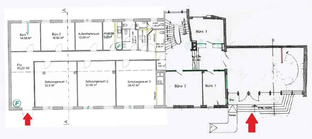
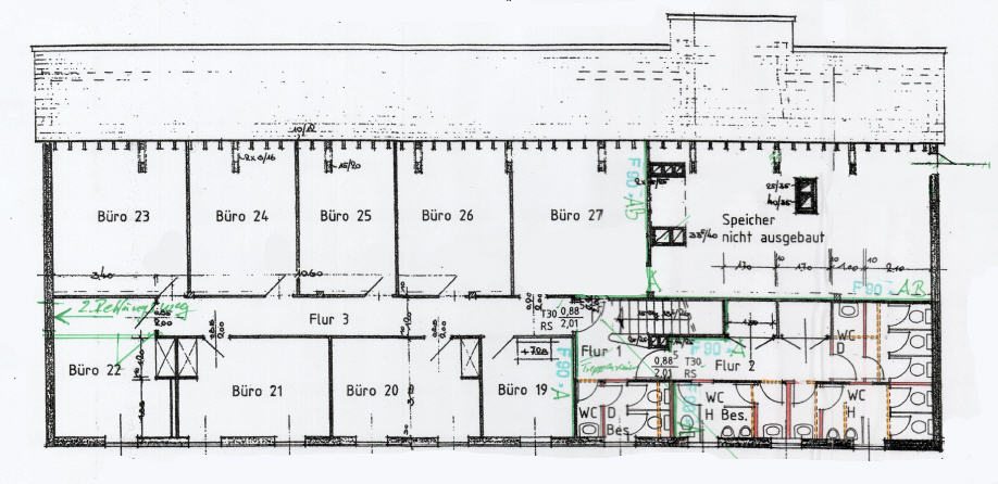
Die angebotene Gewerbefläche befindet sich in zentraler Lage von Idar-Oberstein und bietet vielseitige Nutzungsmöglichkeiten. Die vermietbare Nutzfläche beträgt insgesamt rd. 1.082 m² und erstreckt sich über mehrere Ebenen vom Kellergeschoss bis in das Dachgeschoss. Durch die Aufteilung über verschiedene Geschosse eignet sich die Immobilie sowohl für Büro-, Praxis-, Dienstleistungs- als auch für kombinierte Nutzungskonzepte. Die großzügige Gesamtfläche ermöglicht eine flexible Raumgestaltung und kann an individuelle Anforderungen angepasst werden. Das Gebäude ist vollständig vermietet und generiert derzeit jährliche Mieteinnahmen in Höhe von 66.078 EUR, was eine Rendite von rd. 8,26% ergibt. Beheizt wird die Immobilie über eine Gaszentralheizung. Zudem verfügt das Gebäude über 21 Außenstellplätze sowie zwei Kellergeschosse, die zusätzliche Nutz- und Lagerflächen bieten. Die Lage innerhalb des Stadtgebiets von Idar-Oberstein bietet eine gute Erreichbarkeit und stellt einen attraktiven Standort für gewerbliche Nutzer dar.

Lage


Die Gewerbefläche befindet sich in attraktiver und gut erreichbarer Lage von Idar-Oberstein. Das Umfeld ist geprägt von einer gewachsenen städtischen Struktur mit einer Mischung aus Gewerbe, Dienstleistung und Wohnnutzung. Durch die verkehrsgünstige Anbindung ist der Standort sowohl für Kunden als auch für Mitarbeiter bequem erreichbar. Öffentliche Verkehrsmittel sowie wichtige Verkehrsachsen befinden sich in der Nähe und sorgen für eine gute regionale und überregionale Erreichbarkeit. Einkaufsmöglichkeiten, gastronomische Angebote und weitere infrastrukturelle Einrichtungen sind im näheren Umfeld vorhanden und unterstreichen die Attraktivität des Standorts für unterschiedliche gewerbliche Nutzungen.

Kontakt


Frank Küppers

Frank Küppers

Kaufmann

Geschäftsleitung

Anrede










Alle Angaben sind freiwillig. Wenn wir Ihnen antworten sollen, geben Sie uns bitte entweder Ihre Telefon-Nr. oder Handy-Nr. oder E-Mail-Adresse an.

Kenntnisnahme_Widerrufsbelehrung_Datenschutzerklärung*

Ich habe die Widerrufsbelehrung und die Datenschutzerklärung zur Kenntnis genommen und willige in die Speicherung und Verarbeitung meiner Daten ein.