Zurück zur Übersicht

Moderne Büroetage mit Rundumblick - Ihr neuer Standort in Mainz-Lerchenberg


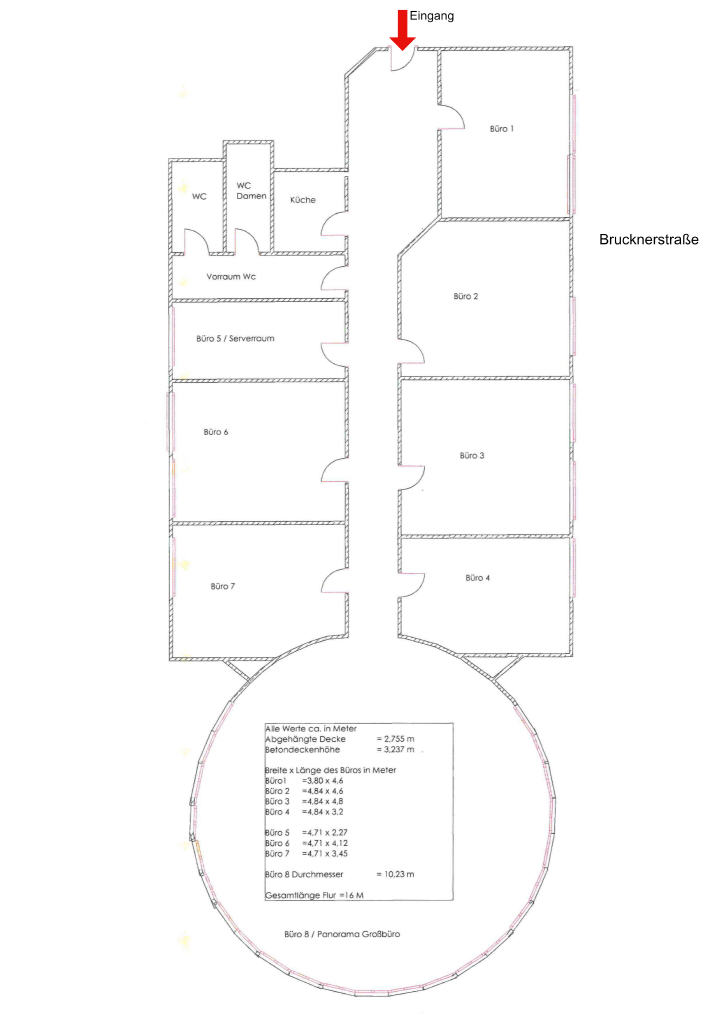
266 m²
Gesamtfläche
10,64 €
Miete pro m²
3-4834
Objekt-Nr.
PLZ
55127

Ort
Mainz

Objektart
Büro

Nebenkosten
650 €

Kaltmiete
2.830 €

Objektbeschreibung

Die angebotene Büroeinheit überzeugt durch eine äußerst hochwertige und umfassende Renovierung (Stand 2023). Die Räumlichkeiten präsentieren sich in einem modernen, repräsentativen Zustand und bieten ideale Voraussetzungen für ein angenehmes Arbeitsumfeld. Großzügige Fensterfronten sorgen in allen Bereichen für eine hervorragende Belichtung und schaffen eine helle, freundliche Atmosphäre. In sämtlichen Räumen sind Brüstungskanäle für Netzwerk- und Stromanschlüsse vorhanden, wodurch eine flexible Nutzung gewährleistet wird. Die Büroetage befindet sich im 2. Obergeschoss und ist bequem über einen Aufzug sowie ein gepflegtes und sauberes Treppenhaus erreichbar. Bereits beim Betreten wird der repräsentative Charakter der Einheit deutlich: Die Flächen sind vielseitig gestaltbar und bieten zahlreiche Nutzungsmöglichkeiten. Ein einheitlich verlegter, moderner Vinylboden in hochwertiger Betonoptik (hellgraues Fliesenformat) mit integriertem Trittschall sorgt für ein stilvolles und zugleich funktionales Erscheinungsbild. Die Teeküche ist vollständig ausgestattet und verfügt unter anderem über einen Geschirrspüler, einen Kühlschrank sowie erneuerte Armaturen. Der Küchenbereich ist mit neuen, weißen Fliesen versehen. Die Sanitäranlagen sind ebenfalls modern gestaltet und umfassen getrennte Damen- und Herren-WCs mit zeitgemäßer Ausstattung. Küche und Sanitärbereiche sind jeweils mit Elektroboilern ausgestattet. Die abgehängten Decken mit integrierter Beleuchtung verleihen insbesondere dem großzügigen Flurbereich eine klare und strukturierte Optik. Ein besonderes Highlight der Etage ist ein außergewöhnlicher Raum mit umlaufendem Ausblick und markanten Säulen. Auch hier sorgen eine abgehängte Decke mit integrierter Beleuchtung sowie die hochwertige Ausstattung für ein exklusives Ambiente ein idealer Bereich für Besprechungen oder anspruchsvolle Arbeitsplätze mit inspirierendem Rundumblick. Alle Fenster sind mit elektrischen Außenjalousien ausgestattet. Zudem wurden die Fenster fachgerecht justiert und die Dichtungen überprüft. Weiß lackierte Innentüren runden das hochwertige Gesamtbild der Büroeinheit stilvoll ab.

Lage


Die Büroeinheit liegt im etablierten Mainzer Stadtteil Lerchenberg, einem gefragten Standort für Büro- und Dienstleistungsunternehmen mit gewachsener Infrastruktur. Die Anbindung ist sowohl mit dem Auto als auch mit öffentlichen Verkehrsmitteln sehr gut: Bus- und Straßenbahnlinien ermöglichen eine schnelle Verbindung in die Innenstadt, während die Autobahnen A60 und A63 in wenigen Minuten erreichbar sind und eine optimale Anbindung in das Rhein-Main-Gebiet bieten. In der näheren Umgebung befinden sich das Einkaufszentrum, Gastronomien sowie weitere Angebote des täglichen Bedarfs. Insgesamt bietet der Standort eine ideale Kombination aus guter Erreichbarkeit und einem professionellen Arbeitsumfeld.

Kontakt


Frank Küppers

Frank Küppers

Kaufmann

Geschäftsleitung

Anrede










Alle Angaben sind freiwillig. Wenn wir Ihnen antworten sollen, geben Sie uns bitte entweder Ihre Telefon-Nr. oder Handy-Nr. oder E-Mail-Adresse an.

Kenntnisnahme_Widerrufsbelehrung_Datenschutzerklärung*

Ich habe die Widerrufsbelehrung und die Datenschutzerklärung zur Kenntnis genommen und willige in die Speicherung und Verarbeitung meiner Daten ein.